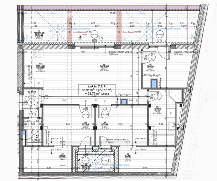
II. EMELET C.2.1.

C / ÉPÜLETSZÁRNY

77,77 m2

Szobák száma: 4

Szabad

Leírás

Ez a lakás egy stílusos és tágas ingatlan, amely 68,91 m² hasznos alapterülettel (nettó alapterület 77,77 m2) rendelkezik. ideális választás nagyobb családok számára, vagy azok számára kik szeretik a tágas tereket. A lakáshoz egy 25,55 m²-es fedetlen terasz és egy 3,24 m²-es másik terasz is tartozik. Képzelje el, ahogy a tágas nappaliban ül, mely közvetlen kapcsolatban áll a terasszal. A hatalmas, nyitható üvegajtók szinte eltűnnek, mikor kinyitja őket, és a friss levegő könnyedén áramlik be, megújuló energiát hozva a helyiségbe. A nappali és a terasz közötti átmenet zökkenőmentes, mintha egyetlen nagy nyitott tér lenne, ahol a beltéri és kültéri élet örömei találkoznak. A hálószobákból közvetlenül juthatunk ki a közös teraszra, míg a félszobából pedig a hangulatos másik teraszra. Az amerikai konyhás nappali tökéletes helyszín a mindennapi élethez és a különleges alkalmakhoz egyaránt, ahol mindenki otthon érezheti magát. A fürdőszoba luxusérzetet kelt a kelt a kád és a zuhanyzó kombinációjával, így mindig választási lehetősége van a gyors zuhany vagy a pihentető fürdő között. Külön helyiségben található a WC, extra kényelmet biztosítva, ami különösen praktikus a mindennapi életben. A lakás ideális választás azok számára, akik keresnek egy tágas és kényelmes otthont és vágynak a természet közelségére.

 

Helyiségek részletes leírása:

  • Előtér (2,28 m²) – Laminált padlóval burkolt előtér, amely kellemesen üdvözli a látogatókat.
  • WC (1,96 m²) – Praktikus kerámia burkolatú mellékhelyiség, amely könnyen tisztán tartható.
  • Fürdőszoba (7,24 m²) – Elegáns kerámia burkolat, amely kiemeli a helyiség modern stílusát.
  • Konyha és étkező (7,45 m²) – Világos, modern konyha-étkező laminált padlóval, ahol a családi étkezések kényelmesen lebonyolíthatók.
  • Nappali (20,55 m²) – Tágas nappali laminált padlóval, amely ideális hely a családi összejövetelekhez és a pihenéshez.
  • Gardrób (1,28 m² / 5,44 m²) – Praktikus tárolóhely laminált padlóval, amely segíti a rendezett életteret.
  • Gardrób (1,51 m² / 6,21 m²) – Praktikus gardrób, amely extra tároló helyet biztosít.
  • Szoba 1 (9,32 m²) – Kényelmes méretű hálószoba laminált padlóval, amely tökéletes a pihenéshez.
  • Szoba 2 (9,32 m²) – Második hálószoba, szintén laminált padlóval, ideális gyermek vagy vendégszobának.
  • Szoba 3 (8,00 m²) – Harmadik hálószoba, szintén laminált padlóval, ideális dolgozószobának vagy gardrób szobának.
  • Fedetlen teraszok (3,24 m² + 25,55 m²) – Fagyálló, csúszásmentes kerámia burkolattal ellátott teraszok, ahol élvezheti a friss levegőt és a szabadtéri kikapcsolódást.

 

Amennyiben a három hálószobás kialakítás az Ön számára ideális, a C.2.1. lakás tökéletes választás lehet.

Ugyanakkor, ha inkább a tágas, világos terek vonzzák, a harmadik szoba falazatának elhagyásával egy igazán nagy, amerikai konyhás nappali alakítható ki, amely otthonos, levegős életteret biztosít.

A két egymás mellett elhelyezkedő hálószoba közös terasszal rendelkezik, míg a nappaliból a belső udvarra néző, legalább 2 méter mély teraszra lehet kilépni – tökéletes hely a reggeli kávéhoz vagy egy esti pihenéshez. A harmadik hálószoba szintén közvetlen teraszkapcsolattal bír, így minden helyiségben élvezhető a természet közelsége.

A hálószobák praktikus gardróbsarokkal lettek kialakítva, míg a fürdőszobában kád és zuhanyzó is helyet kapott, hogy a mindennapi használat kényelmes és rugalmas legyen.

A lakás hasznos alapterülete 68,91 m², ehhez tartozik:
• 28,79 m² terasz (melynek fele beszámítható, azaz 14,395 m²),
• valamint egy gardróbrész (szintén fele részben számolva +4,43 m²)
Így az összesített terület 87,735 m².

A vételár tartalmazza az elektromos redőnyöket távirányítóval, LED kiállásokat: gardróbszobákban, falikar kiállásokat a hálószobákban – csillárkapcsolókkal.

 

Tároló:

A lakásokhoz korlátozott számban tárolók vásárolhatók, amelyek nagyszerű lehetőséget kínálnak a további tárolási igények kielégítésére.

Ezek a tárolók ideálisak lehetnek a szezonális holmik, sportfelszerelések, vagy éppen a ritkábban használt tárgyak biztonságos és rendezett elhelyezésére.

A korlátozott mennyiség miatt érdemes mielőbb érdeklődni a rendelkezésre álló tárolóhelyekről, hogy biztosíthassa magának ezt a praktikus kiegészítést az új otthonához. A tárolók megvásárlása külön díj ellenében lehetséges, de a befektetés hosszú távon kényelmet és rendet biztosít az életterében.

 

Fedetlen beálló:

Korlátozott számban  fedetlen beállók állnak rendelkezésre, amelyek megvásárolhatók.

A fedetlen beállók egyszerű és kényelmes megoldást kínálnak, ideálisak lehetnek azok számára, akik nem igényelnek teljes fedést, de szeretnének biztos parkolóhelyet az otthonuk közelében. Ezek a beállók általában könnyen megközelíthetők és kényelmes parkolási lehetőséget biztosítanak.

Mivel a parkolóhelyek korlátozott számban érhetők el, érdemes mielőbb érdeklődni a rendelkezésre álló lehetőségekről, hogy biztosíthassa a számára legmegfelelőbb parkolási megoldást.